울산시는 시청 본관 1층 로비를 문화와 휴식이 어우러진 공간으로 새단장하는 사업을 완공하고 4월 1일부터 시민들에게 개방한다고 밝혔다.
울산시는 지난 2008년 본관 건립 후 로비 내에 여러 사무실을 배치해 사용해 왔으나 답답한 분위기라는 의견이 많았다.
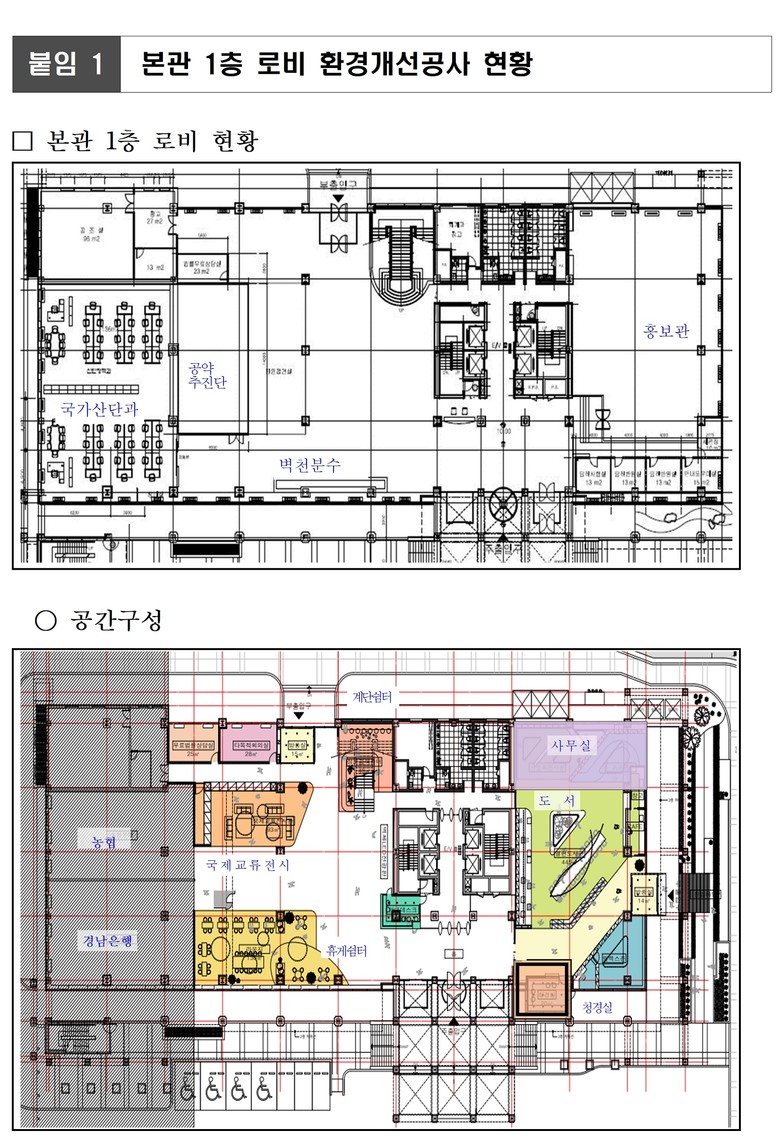
이에 울산시는 지난해 10월부터 새단장 사업에 착공해 도서관, 전시관, 만남의 장소 등을 설치하고 이날부터 시청사 1층을 시민에게 개방하게 됐다.
로비 공간에는 8,000여 권의 책을 비치해 청사를 방문하는 시민들이 휴식하며 책을 볼 수 있는 열린 도서관과 일본, 중국 등 국제교류도시에서 받은 각종 기념품을 전시하는 국제교류전시관이 들어섰다.
로비 서쪽에는 시금고인 비엔케이(BNK)울산경남은행과 엔에이치(NH)농협이 1별관에서 이전해 금융 업무를 볼 수 있게 됐다.
컴퓨터로 인터넷을 이용할 수 있는 정보검색센터와 어려운 법률 상담을 무료로 받을 수 있는 무료법률상담실도 마련했다.
또한, 민원안내창구(데스크)와 청원경찰실을 확장해 시민들이 청사를 방문하는 경우 편안하게 도움을 받을 수 있도록 개선했으며 안내창구(데스크) 옆 벽면에 대형 엘이디(LED)전광판을 설치해 시정홍보와 울산 관광지를 영상으로 볼 수 있다.
울산시 관계자는 “이번 사업은 시 청사를 열린공간으로 새단장해 시민에게 온전히 개방하기 위해 추진하게 됐다”라며 “청사 로비를 시청마당의 생태정원과 연계한 어린이와 청소년, 시민들의 청사 견학과정(코스)으로 운영해 시청사가 시민 휴식여가공간, 문화공간으로 자리 잡을 수 있도록 지속적으로 관리해 나가겠다"라고 말했다.



[저작권자ⓒ 강원세계타임즈. 무단전재-재배포 금지]











































